店付住宅
「利回り」は、当該不動産の1年間の予定賃料収入の不動産取得対価に対する割合であり、公租公課その他当該物件を維持するために必要な費用の控除前のものです。
また、予定賃料収入が確実に得られる事を保証するものではありません。

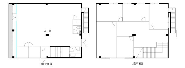
店舗 1階154.44㎡ 2階 146.34㎡ 現在空き 旧学習塾 住宅 居住中 平成26年築 3LDK+S 敷地面積 213.12坪 敷地内に住居と店舗があります。

※地図上の物件位置は近隣に物件が所在することを表すものであり、実際の物件所在地とは異なる場合がございます。
048-553-0446
営業時間:9:00~17:00 / 定休日:毎週火曜日・水曜日
| 所在地 | 埼玉県行田市行田 | ||
|---|---|---|---|
| 交通 |
秩父鉄道 「行田市」駅
徒歩5分 高崎線 「吹上」駅 徒歩58分 バス17分 新町1丁目下車 徒歩1分 |
||
| 価格 | 4,980万円 | ||
| 築年月(築年数) | 1967年 9月(築58年) | 主要採光面 | 南 |
| 建物構造 | 鉄骨造 | 階数 | 2階建 |
| 私道負担面積 | セットバック | ||
| 建物面積 | 300.78㎡ | 土地面積 | 704.56㎡ |
| 接道状況 | 一方 (西側 公道15.0m) | ||
| 建ぺい率/容積率 | 80%/ 400% | 土地権利 | 所有権 |
| 地目 | 宅地 | 地勢 | 平坦 |
| 土地の権利形態 | |||
| 都市計画 | 市街化区域 | 用途地域 | 商業地域 |
| その他法令上の制限 | |||
| 国土法届出 | 不要 | 取引態様 | 専任媒介 |
| 現況 | 空家 | 引渡し | 相談 |
| 駐車場 | 空有 | ||
| 設備条件 | 公共下水 / 公営水道 / 都市ガス | ||
| その他条件 | |||
| 備考 | |||
| 周辺の学校 | |||
| 建築確認番号 | 物件番号 | 98381860 | |
| 情報公開日 | 2025年11月9日 | 次回更新予定日 | 2025年11月23日 |
| 取引条件の有効期限 | 2025年11月23日 | ||
| 取扱い会社 |
田口不動産株式会社 〒361-0046 埼玉県行田市壱里山町28-8 埼玉県知事(15)第2487号 |
||
048-553-0446
営業時間:9:00~17:00 / 定休日:毎週火曜日・水曜日
| 所在地 | 物件の住所を表示。(詳細住所は表示していない場合もある) | ||
|---|---|---|---|
| 交通 | 物件(部屋)の沿線駅・バス停を表示。(複数駅・バス停の利用が可能な場合は最大3件まで) | ||
| 間取り/詳細 | 数字は居室数を表示。LDKはそれぞれ「リビング」「ダイニング」「キッチン」、S(納戸)とは「納戸」「サービスルーム」「マルチルーム」「フリールーム」など建築基準法第28条に適合していないため、居室と認められない納戸その他の部分を表す。 | ||
| 価格 | 販売されている住戸の価格を表示。仲介手数料は含まない。 | ||
| 管理費 | 共同住宅の設備その他共用部分の維持および管理をするために必要な費用を表示。 | ||
| 修繕積立金 | 共用部分の修繕のために積立てる金額を表示。 | ||

【外観】店舗外観 現在空き(旧学習塾)